Mieszkanie zarezerwowane

m16_popr_b3_popr

Miejsca parkingowe/piwnice:

Cena: 299 000 złotych brutto

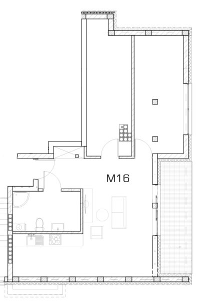
Zestawienie powierzchni – 64.46mpowierzchnia po podłodze

  • Salon/Aneks kuchenny – 30,86 m2
  • Pokój 1 – 13,82 m2
  • Pokój 2 – 13,34 m2
  • Łazienka – 6,44 m2
  • W cenie taras – około 10 m2

Dodatkowe opcje:

  • Miejsce parkingowe w garażu podziemnym wraz z komórką lokatorską – 40 tys. złotych brutto

Sprawdź pozostałe mieszkania

Formularz kontaktowy

Imię i nazwisko (wymagane)

Adres email (wymagane)

Temat

Telefon (wymagane)

Treść wiadomości